LAMELLEN ROOSTER
Onderstaand een overzicht van de verschillende type Lamellen Rooster. Het LG-Rooster, LGG-Rooster, LR-Roosters en LRV-roosters met hun typische eigenschappen, omschrijvingen en doorsnede overzichten.
Het volledige rooster overzicht vindt u op onze ROOSTERS OVERZICHT pagina.
Heeft u vragen of wilt u een van onze roosterproducten bestellen en wilt u een prijsopgave? Vraag dan snel een offerte aan of neem telefonisch contact met ons op.
Wij staan voor u klaar ! Ook leveren wij via www.roostersbestellen.nl
Lamellen Rooster LG 44x66

Rooster LG: regeninslag werend
Dit luchtsturende roostertype vindt zijn toepassing als zgn. looprooster of als gevelrooster vanwege zijn unieke eigenschappen wat betreft anti- doorkijk, estetica en het weren van regeninslag. De optische eigenschap van het product zorgt er v0or dat bij verticaal gebruik een zgn. “gesloten” wand ontstaat dit in combinatie met de grote luchtdoorlaat die het rooster eigen is. Bij horizontale toepassing voorkomt zijn vorm doorkijk van beneden naar boven en omgekeerd. Dit verhoogt het veiligheidsgevoel en komt tegemoet aan de geldende etische normen bij openbaar gebruik.
Lamellen Rooster LGG 44x66

Rooster LGG: regeninslag vrij
Het LGG rooster kenmerkt zich, door de lamelschoep die aan beide uiteinde gezet is. Hierdoor ontstaat er een rooster dat visueel gesloten is, maar wel de eigenschap van luchtdoorlating bezit. Hieronder ziet u een voorbeeld van een dergelijk rooster. Afhankelijk van de gekozen maaswijdte is dit type rooster regeninslagvrij.
Lamellen Rooster LR45 41x66

Rooster LR45: regeninslagwerend
Dit rooster met schuin ingestanste schoeppen combineert de eigenschappen van het bovengenoemde rooster met de budgettaire mogelijkheden van grotere projecten. Door een sterk geautomatiseerde produktiemethode van dit type rooster ontstaat een beduidend gunstiger prijsniveau bij een optisch gelijkwaardig uiterlijk.
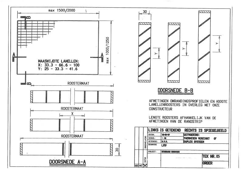
Lamellen Rooster LRV 30A

Rooster LRV 30A
De lamellenstaven in het rooster kunnen, bij zowel het LR als LG rooster in meerdere hoeken worden gezet. Stelregel hiervoor en uitgelegd in de tekening hiernaast, is dat de hoek van de lamelschoep, vanaf 45 graden met stappen van 7,5 graad steiler gezet kunnen worden.
Lamellen Rooster LRV 30B

Rooster LRV 30B
De lamellenstaven in het rooster kunnen, bij zowel het LR als LG rooster in meerdere hoeken worden gezet. Stelregel hiervoor en uitgelegd in de tekening hiernaast, is dat de hoek van de lamelschoep, vanaf 45 graden met stappen van 7,5 graad steiler gezet kunnen worden.
Lamellen Rooster LRV 30C

Rooster LRV 30C
De lamellenstaven in het rooster kunnen, bij zowel het LR als LG rooster in meerdere hoeken worden gezet. Stelregel hiervoor en uitgelegd in de tekening hiernaast, is dat de hoek van de lamelschoep, vanaf 45 graden met stappen van 7,5 graad steiler gezet kunnen worden.


