PERFO KOOILADDER PROFIELEN
Perfo kooiladder profielen vervaardigd uit staal S235JR (on-) verzinkt, rvs of aluminium.
Met een handelslengtes van 2000 mm.
- uit voorraad leverbaar
- op maat gemaakt
- snelle levertijd mogelijk
De kooiladder is een permanente gevelladder die volgens de wet- en regelgeving en geldende
normering (NEN-EN-ISO 14122-4) dient te worden gebruikt bij overbruggingshoogtes boven de 3
meter. Onder de drie meter kan een gevelladder zonder kooi volstaan. Echter in de Arbocatalogus
Platte Daken wordt de kooi geëist vanaf 2,5 meter, i.p.v. 3 meter.
Maar het is te adviseren om de kooi van de kooiladder te gebruiken vanaf 2,5 meter voor optimale
veiligheid. De kooiladder kan worden geplaatst voor diverse soorten gevels, o.a. baksteen, hout,
glas, sandwichpanelen of staal. Afhankelijk van de gevelconstructie kan de kooiladder aan de gevel
worden verankerd of anders vrij worden opgelegd met behulp van ballast. Zie onderstaand het
overzicht.
Synoniemen voor perfo kooiladder profielen: perforoosters en perfotreden, spiltreden, perfo treden met schetsplaat, laddertreden, ladderprofielen, schoprand.
Het volledige rooster overzicht vindt u op onze ROOSTERS OVERZICHT pagina.
Wilt u een van onze roosterproducten bestellen en wilt u een prijsopgave? Vraag dan snel een offerte aan of neem telefonisch contact met ons op.
Wij staan voor u klaar ! Ook leveren wij via www.roostersbestellen.nl
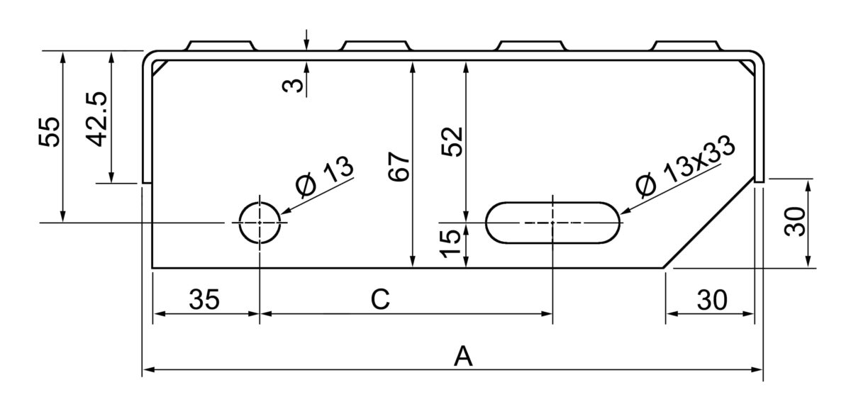
DWARSDOORSNEDE

SCHETSPLATEN VOLGENS DIN

Standaard maten bij een lengte van:
600mm, 700mm, 800mm, 900mm, 1000mm en 1200mm;
| A | C |
| 200mm | 120mm |
| 250mm | 120mm |
| 300mm | 180mm |





